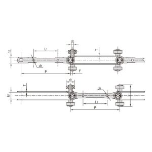
Podwójny przegubowy łańcuch przenośnika jest głównym elementem trakcyjnym lekkiego przenośnika z zawieszeniem gąsienicowym.